Design Development & Documentation with Fabric[K]

Final Plan Review

Design Development & Documentation (DDD) is the second phase of our architectural process. It combines the Design Development Phase and the Construction Document Phase of the traditional architectural process into a single phase for simplicity. Using the spatial organization and aesthetic developed during the Schematic Phase, the Design Development & Documentation Phase is a transitional point where Fabric[K] transforms a building concept into something that can actually be built.

What Happens During the Design Development & Documentation (DDD) Phase

During DDD, Fabric[K] will massage the spaces to make sure they work precisely. Dimensions are cleaned up. Required clearances from various codes will be integrated. Specifications will be made and details will be drawn so that the building’s performance and constructability can be understood with in-depth specificity and precision.


Detail Review

Perhaps the most important and necessary task during the DDD Phase is the integration and coordination between the architecture and it’s supporting building systems. It is the responsibility of the architect to make sure all the components of the building correspond to one another while not detracting from the design intent. We rely heavily on the expertise of qualified engineers and consultants. But, ultimately it The Architect’s jobs to manage all the moving parts. There will be several checkpoints throughout the DDD process and a final set is submitted to The Client for review and approval, after which The Architect will proceed to the next phase of the project

In DDD Fabric[K] is looking to establish the following elements of your project…,

  • Coherent Life Safety Plan for user egress/ingress.

  • A high performing thermal and insulating “building envelope.”

  • General selection of exterior materials.

  • Proper drainage and management of stormwater

  • A coherent structural strategy for the building(s).

  • Location of primary Electrical equipment and fixtures.

  • Location of primary HVAC equipment, inlets, and outlets.

  • Location of primary Plumbing equipment, fixtures and drains.

  • A coherent assembly of ALL major building components expressed through details.

Who are the Players During the Design Development & Documentation (DDD) Phase

The Architect and building engineers (mechanical, electrical, plumbing, and structural engineers) are the primary participants in the DDD Phase. The Owner/Client usually takes a back seat during this phase because most of the level setting decisions have already been affirmed during the previous phase. Should the project call for it, other speciality consultants are also introduced during this phase such as Interior Designers, Building Envelope Specialists, Specification Writers, and others. For some projects the Civil Engineer also has a bit of additional work during this phase to coordinate municipal sanitary, sewerage, water , and gas service with the plumbing engineer. Civil Engineers are also typically the leads when it comes to defining work to be done in the public right of way. responsible for putting together Public Right of Way Plans. Lastly, a hired Construction Manager on a project can provide additional, refined construction cost estimates at the various checkpoints during this phase. This can help manage costs before getting to the actual bidding & permitting phases.

What’s in a Fabric[K] DDD Set?

Our process always begins with rough sketches and diagrams that gradually become more refined as we hone in on what will become the main idea of project.

In addition to the foundational drawings included the Schematic Design Set our Final Design Development & Documentation Drawing sets will include the following drawings…,

  1. Life Safety & Egress Plans (if applicable)

  2. Sheet Specification or Specification Project Manual

  3. Annotated & Tagged Floor Plans

  4. Annotated & Tagged Building Elevations

  5. Generic Exterior Material Schedule

  6. Annotated & Tagged Building Sections

  7. Annotated & Tagged Wall Sections

  8. Annotated Section & Plan Details

  9. Enlarged Unit Plans (if applicable)

  10. Stair Plans & Sections

  11. Interior Elevations (only of required accessible/ADA spaces)

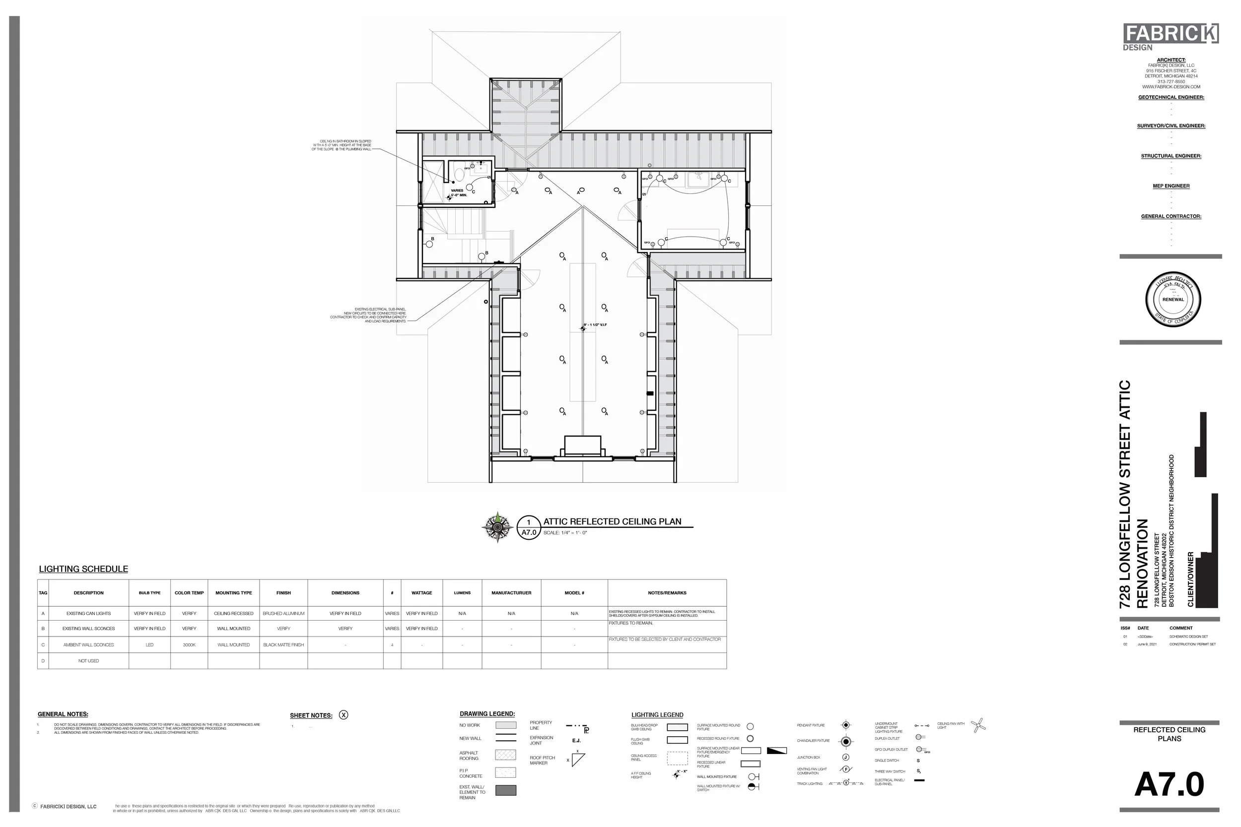
  12. Reflected Ceiling Plans

  13. Lighting Schedule

  14. Door & Window Schedules

  15. Wall & Floor Assembly Schedules

  16. Supplemental Structural Drawings (if required)

  17. Supplemental M.E.P. Drawings (if required)

  18. Interior Design Drawings

  19. Civil Engineering Drawings (if applicable. provided by Client’s consultant. Architect will coordinate with Civil Engineer)

There maybe situational instances where additional drawings are needed to complete this phase. But, in all cases at least the above drawings will be included.

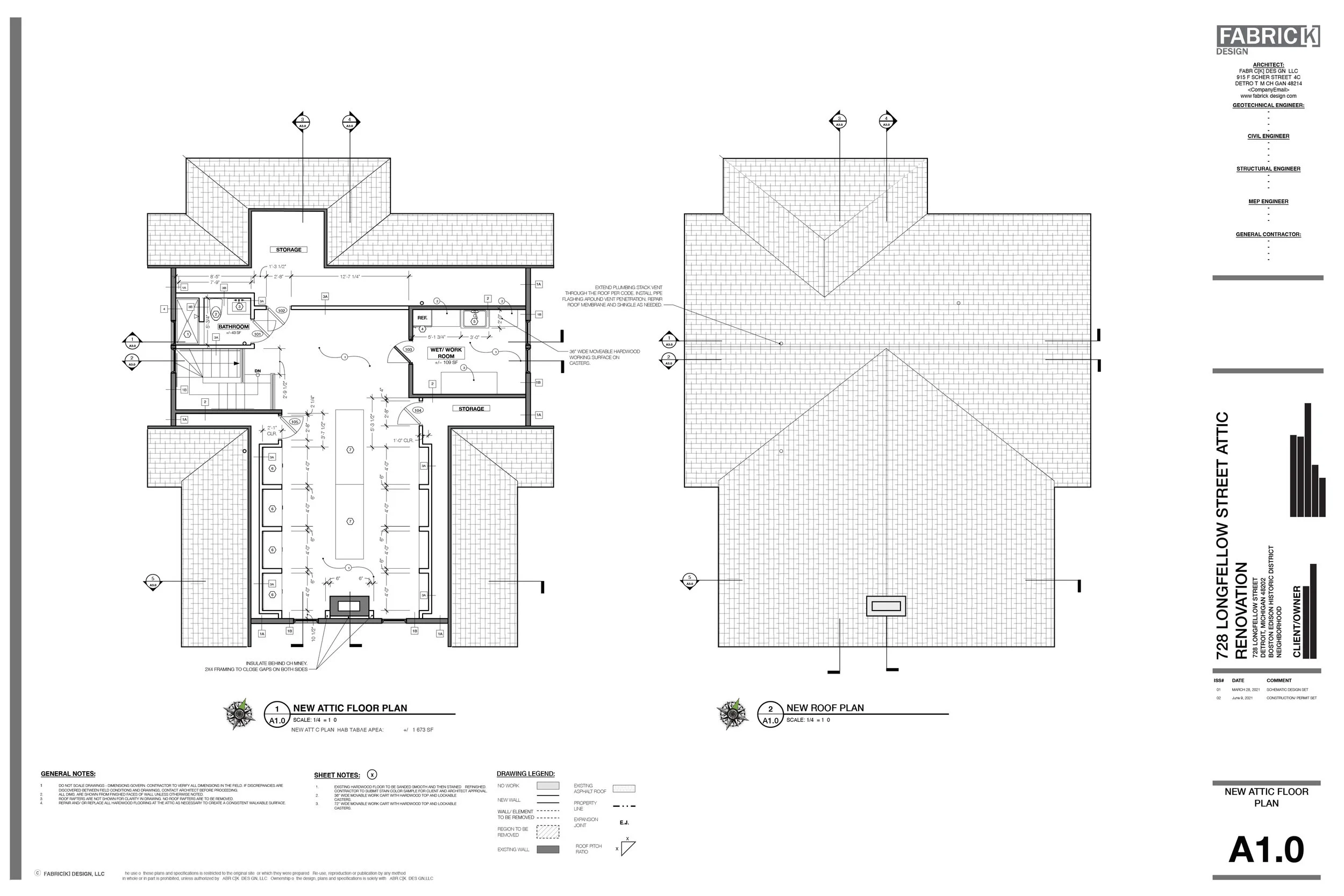
To the right is a DRAFT/PROGRESS example of a Design Development & Documentation Drawing Set from our Sundial Apartment Project.


What Can Be Done with a Design Development & Documentation (DDD) Set

A completed Design Development & Documentation Set is primarily used for bidding and permitting purposes. The drawings and specs at the end of this phase Will have enough instruction for construction, but are not typically used for construction because changes (or addendum) can and will need to be made by way of the bidding and permitting processes. Generally speaking, here’s what the DDD Document Set will be used for…,

  • The benchmark and progress sets of the DDD drawings can be used by a capable Builder/Construction Manager to get more detailed cost of construction estimates.

  • In some instances progress sets of the DDD drawings can be used to pull partial permits like a foundation to grade or demolition permit.

  • To submit and apply for a building permit.

  • To bid or negotiate a project’s cost with a Builder/ General Contractor.

  • 3rd Party Constructability Reviews.

  • A clear understanding of how to build the building

  • The foundation for a completed Construction Set.

How Much Does DDD Phase Cost in $ and Time?

Basic Fabric[K] services are offered as fixed fees along a sliding scale and based on project type. This fixed fee includes all the standard services provided in each of our four project phases. However, typically the DDD phase of the project will represent 55%-60% of that fixed fee and will take anywhere from 2- 6 months to complete. Again this is all dependent on the size and complexity of the project.

Additional Services During DDD Phase

Nearly all of our services are clear, fixed fee and A La Carte so you - The Customer - can customize your architectural experience with us as needed. We call these additional services ‘ EXTRAS’ and in these cases Fabric[K] will request additional fees which will be attached to any main project services.

Typical ‘EXTRAS’ requested or required during our Design Development & Documentation Phase include but are not limited to the following…,


The example Design Development & Documentation Set above is from a smaller home renovation project that required less drawings but also an additional municipal review because it exists in an historic district.

  • Coordination with Client/ Client’s Consultants - We coordinate any work performed by our Client’s and their consultants.

  • Interior Design Service: FF&E - Interior design service focused specifically on the design of individual spaces and their furnishings.

  • Interior Design Service: Doors, Windows, and Hardware - Interior design service focused on the design and selection of speciality doors, windows and their accompanying hardware.

  • Interior Design Service: Custom Millwork - Interior design service focused on custom millwork and cabinetry.

  • Design Changes/Additional Schematic Service - Design changes requested AFTER a final Schematic Design has been approved or additional design time is needed to complete the initial Schematic Design is an additional service.

  • Permitting Assistance (if not included in fixed fee) - We will assist the client in preparing, submitting and managing the permit packages to the municipality having jurisdiction.

  • Additional Renderings - We will provide more project renderings in addition the ones included in our main service.


For more insight on all of our services and fees Click Here. We also have an interactive downloadable Menu of Services.